Details
Carrington Avenue, Hornsea, HU18
£295,000
Description
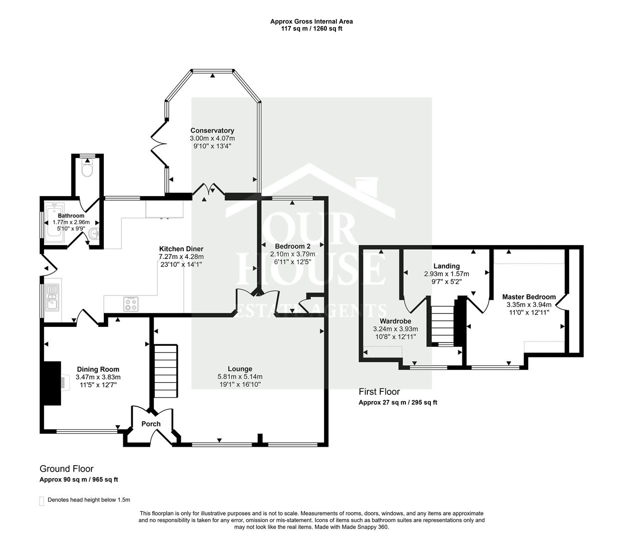
Set on a generous end plot along Carrington Avenue, this three-bedroom dormer bungalow comes with the added benefit of a wraparound side driveway providing excellent off-road parking.Inside, the ground floor features a welcoming lounge, separate dining room, and a spacious kitchen diner leading into a bright conservatory with views over the garden. There is also a good-sized bedroom, family bathroom, and a separate W.C. Upstairs offers a further double bedroom as well as an additional room currently used as a dressing room.The rear garden is a real highlight — much larger than expected and thoughtfully laid out with mature trees and shrubs throughout. A long central pathway leads through the lawn to a paved seating area, greenhouse, and two sheds, creating a wonderful outdoor space for relaxing, entertaining, or enjoying hobbies.A homely property with flexible accommodation and a fantastic garden, offering plenty of space both inside and out.EPC: DCouncil Tax: CTenure: Freehold
Front Garden
Genrous front garden with parking five or six.
Entrance Hall
Carpeted entrance hall with front door and radiator.
Lounge (5.89 x 4.27 (19'3" x 14'0" ))
Carpeted lounge with two front facing windows, Two radiators and a staircase leading to the first floor.
Dining Room/ Snug (3.57 x 3.58 (11'8" x 11'8"))
This dining room offers a front facing window, a wood surround fireplace with tiled slate hearth and open coal, Covng to ceiling, Radiator and finished with carpet.
Kitchen Diner (7.25 x 3.82 (23'9" x 12'6"))
A beautiful kitchen diner featuring side and rear-facing windows, side access door, and French doors leading to the conservatory. Fitted with a range of wall and base units, work surfaces, and a one-and-a-half bowl ceramic sink with drainer. Appliances include a gas hob with extractor, built-in electric oven, integrated microwave, and fridge freezer. Additional features include a breakfast bar, partly tiled walls, coving to the ceiling, radiator, and vinyl flooring.
Conservatory
Conservatory includes windows facing the side and rear garden.
First Floor Landing
Carpeted with rear facing dormer window, Radiator and storage to eaves.
Master Bedroom (4.08 x 3.39 (13'4" x 11'1" ))
Includes a dormer window facing the front of the property, Storage to eaves, Radiator and vinyl floor.
Bedroom 2 (Ground Floor) (3.81 x 2.13 (12'5" x 6'11" ))
Carpeted bedroom with a window facing the rear of the property, Coving to ceiling and ceiling rose, Picture rail, Radiator and cupboard housing boiler.
Bedroom 3 (3.54 x 2.17 (11'7" x 7'1" ))
Includes a front facing window, Sloping ceiling, Radiator and storage to eaves.
Bathroom (1.97 x 1.54 (6'5" x 5'0" ))
Bathroom with side-facing window, pedestal wash basin, panelled bath with shower over, partly tiled walls, radiator, vinyl flooring, and separate WC.
Seperate WC
This seperate WC comes off of the bathroom. It features a window to the rear, Radiator, Partly tiled walls and vinyl floor.
Rear Garden
This generous sized rear garden features two garden sheds, a greenhouse and a summer house.
Viewing
Please contact us on 01964 532121 if you wish to arrange a viewing appointment for this property, or require further information.
Energy Performance Certificate
Click here to view the Energy Efficiency Rating and Environmental Impact Rating for this property.
Disclaimer
Our House Estate Agents - HU18 endeavour to maintain accurate depictions of properties in Virtual Tours, Floor Plans and descriptions, however, these are intended only as a guide and purchasers must satisfy themselves by personal inspection.
Set on a generous end plot along Carrington Avenue, this three-bedroom dormer bungalow comes with the added benefit of a wraparound side driveway providing excellent off-road parking.Inside, the ground floor features a welcoming lounge, separate dining room, and a spacious kitchen diner leading into a bright conservatory with views over the garden. There is also a good-sized bedroom, family bathroom, and a separate W.C. Upstairs offers a further double bedroom as well as an additional room currently used as a dressing room.The rear garden is a real highlight — much larger than expected and thoughtfully laid out with mature trees and shrubs throughout. A long central pathway leads through the lawn to a paved seating area, greenhouse, and two sheds, creating a wonderful outdoor space for relaxing, entertaining, or enjoying hobbies.A homely property with flexible accommodation and a fantastic garden, offering plenty of space both inside and out.EPC: DCouncil Tax: CTenure: Freehold
Front Garden
Genrous front garden with parking five or six.
Entrance Hall
Carpeted entrance hall with front door and radiator.
Lounge (5.89 x 4.27 (19'3" x 14'0" ))
Carpeted lounge with two front facing windows, Two radiators and a staircase leading to the first floor.
Dining Room/ Snug (3.57 x 3.58 (11'8" x 11'8"))
This dining room offers a front facing window, a wood surround fireplace with tiled slate hearth and open coal, Covng to ceiling, Radiator and finished with carpet.
Kitchen Diner (7.25 x 3.82 (23'9" x 12'6"))
A beautiful kitchen diner featuring side and rear-facing windows, side access door, and French doors leading to the conservatory. Fitted with a range of wall and base units, work surfaces, and a one-and-a-half bowl ceramic sink with drainer. Appliances include a gas hob with extractor, built-in electric oven, integrated microwave, and fridge freezer. Additional features include a breakfast bar, partly tiled walls, coving to the ceiling, radiator, and vinyl flooring.
Conservatory
Conservatory includes windows facing the side and rear garden.
First Floor Landing
Carpeted with rear facing dormer window, Radiator and storage to eaves.
Master Bedroom (4.08 x 3.39 (13'4" x 11'1" ))
Includes a dormer window facing the front of the property, Storage to eaves, Radiator and vinyl floor.
Bedroom 2 (Ground Floor) (3.81 x 2.13 (12'5" x 6'11" ))
Carpeted bedroom with a window facing the rear of the property, Coving to ceiling and ceiling rose, Picture rail, Radiator and cupboard housing boiler.
Bedroom 3 (3.54 x 2.17 (11'7" x 7'1" ))
Includes a front facing window, Sloping ceiling, Radiator and storage to eaves.
Bathroom (1.97 x 1.54 (6'5" x 5'0" ))
Bathroom with side-facing window, pedestal wash basin, panelled bath with shower over, partly tiled walls, radiator, vinyl flooring, and separate WC.
Seperate WC
This seperate WC comes off of the bathroom. It features a window to the rear, Radiator, Partly tiled walls and vinyl floor.
Rear Garden
This generous sized rear garden features two garden sheds, a greenhouse and a summer house.
Viewing
Please contact us on 01964 532121 if you wish to arrange a viewing appointment for this property, or require further information.
Energy Performance Certificate
Click here to view the Energy Efficiency Rating and Environmental Impact Rating for this property.
Disclaimer
Our House Estate Agents - HU18 endeavour to maintain accurate depictions of properties in Virtual Tours, Floor Plans and descriptions, however, these are intended only as a guide and purchasers must satisfy themselves by personal inspection.
Share
Request aValuation
Request a free, no obligation, property valuation.
We know your home is your greatest investment, and if you are thinking of putting your property on the market, we are here to help. We are happy to discuss all aspects of the marketing and value of your property and we aim to book a market appraisal at a time that suits you best. Simply follow the link and one of our agents will contact you to discuss the valuation and marketing of your property.

