Details
Cliff Road, Hornsea, HU18
£147,950
(Sold Subject To Contract)
Description
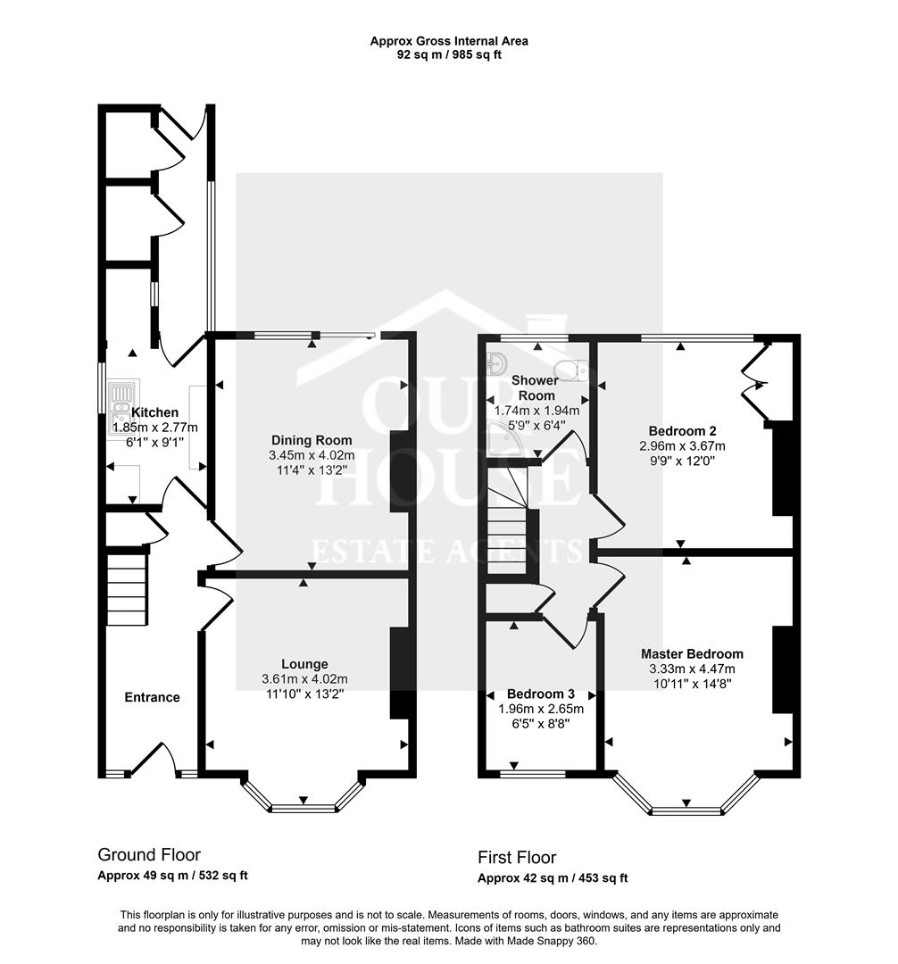
A fantastic opportunity to acquire this three-bedroom end-terrace home in the heart of Hornsea. Requiring a degree of modernisation, the property offers excellent scope for improvement and the chance to create a comfortable and personalised home.The accommodation briefly comprises a living room, separate dining room, and a compact kitchen, along with a useful utility/storage area and a convenient downstairs WC. To the first floor are three bedrooms and a family bathroom.Externally, the property benefits from a rear yard providing low-maintenance outdoor space. Ideally located within easy reach of the town centre, local shops and amenities, this property will appeal to first-time buyers, investors or anyone seeking a project with great potential.EPC: DCouncil Tax: BTenure: Freehold
Front Garden
This enclosed garden includes slate boarders.
Entrance Hall
Entrance door leading to carpeted hall and features including, Coving to ceiling, Front facing window, Under stairs cupboard, Radiator and staircase to the first floor.
Cloakroom (WC)
WC including rear facing window.
Lounge (4.05 x 3.64 (13'3" x 11'11"))
Carpeted lounge with coving ceiling, Front facing bay window and radiator.
Dining Room (4.04 x 3.45 (13'3" x 11'3"))
Carpeted with built in units, Window and patio.
Kitchen
Windows to the side and rear, fitted wall and base units with work surfaces over, single drainer stainless steel bowl sink, partly tiled walls, pantry cupboard, and radiator.
Utility/ Rear Porch (3.92 x 2.05 (12'10" x 6'8"))
Side window, Doors to garden, Plumbing for washer and vinyl floor.
First Floor Landing
Carpeted with features including loft access, Spindle banister and boiler cupboard.
Master Bedroom (4.54 x 3.35 (14'10" x 10'11"))
Carpeted with front facing bay window, Coving to ceiling and radiator.
Bedroom 2 (3.65 x 3.44 (11'11" x 11'3"))
Window facing the rear garden, Built in wardrobes, Coving to ceiling and carpeted.
Bedroom 3 (2.71 x 1.96 (8'10" x 6'5"))
Built in wardrobes, Front facing windows, Radiator and carpeted.
Shower Room (1.94 x 1.76 (6'4" x 5'9"))
Features include rear facing window, W.C, Pedestal hand wash basin, Step in shower, Heated towel rail, Tiled walls and vinyl floor.
Rear Garden
Includes fenced boundaries, Paved area and two garden sheds.
Viewing
Please contact us on 01964 532121 if you wish to arrange a viewing appointment for this property, or require further information.
Energy Performance Certificate
Click here to view the Energy Efficiency Rating and Environmental Impact Rating for this property.
Disclaimer
Our House Estate Agents - HU18 endeavour to maintain accurate depictions of properties in Virtual Tours, Floor Plans and descriptions, however, these are intended only as a guide and purchasers must satisfy themselves by personal inspection.
A fantastic opportunity to acquire this three-bedroom end-terrace home in the heart of Hornsea. Requiring a degree of modernisation, the property offers excellent scope for improvement and the chance to create a comfortable and personalised home.The accommodation briefly comprises a living room, separate dining room, and a compact kitchen, along with a useful utility/storage area and a convenient downstairs WC. To the first floor are three bedrooms and a family bathroom.Externally, the property benefits from a rear yard providing low-maintenance outdoor space. Ideally located within easy reach of the town centre, local shops and amenities, this property will appeal to first-time buyers, investors or anyone seeking a project with great potential.EPC: DCouncil Tax: BTenure: Freehold
Front Garden
This enclosed garden includes slate boarders.
Entrance Hall
Entrance door leading to carpeted hall and features including, Coving to ceiling, Front facing window, Under stairs cupboard, Radiator and staircase to the first floor.
Cloakroom (WC)
WC including rear facing window.
Lounge (4.05 x 3.64 (13'3" x 11'11"))
Carpeted lounge with coving ceiling, Front facing bay window and radiator.
Dining Room (4.04 x 3.45 (13'3" x 11'3"))
Carpeted with built in units, Window and patio.
Kitchen
Windows to the side and rear, fitted wall and base units with work surfaces over, single drainer stainless steel bowl sink, partly tiled walls, pantry cupboard, and radiator.
Utility/ Rear Porch (3.92 x 2.05 (12'10" x 6'8"))
Side window, Doors to garden, Plumbing for washer and vinyl floor.
First Floor Landing
Carpeted with features including loft access, Spindle banister and boiler cupboard.
Master Bedroom (4.54 x 3.35 (14'10" x 10'11"))
Carpeted with front facing bay window, Coving to ceiling and radiator.
Bedroom 2 (3.65 x 3.44 (11'11" x 11'3"))
Window facing the rear garden, Built in wardrobes, Coving to ceiling and carpeted.
Bedroom 3 (2.71 x 1.96 (8'10" x 6'5"))
Built in wardrobes, Front facing windows, Radiator and carpeted.
Shower Room (1.94 x 1.76 (6'4" x 5'9"))
Features include rear facing window, W.C, Pedestal hand wash basin, Step in shower, Heated towel rail, Tiled walls and vinyl floor.
Rear Garden
Includes fenced boundaries, Paved area and two garden sheds.
Viewing
Please contact us on 01964 532121 if you wish to arrange a viewing appointment for this property, or require further information.
Energy Performance Certificate
Click here to view the Energy Efficiency Rating and Environmental Impact Rating for this property.
Disclaimer
Our House Estate Agents - HU18 endeavour to maintain accurate depictions of properties in Virtual Tours, Floor Plans and descriptions, however, these are intended only as a guide and purchasers must satisfy themselves by personal inspection.
Share
Request aValuation
Request a free, no obligation, property valuation.
We know your home is your greatest investment, and if you are thinking of putting your property on the market, we are here to help. We are happy to discuss all aspects of the marketing and value of your property and we aim to book a market appraisal at a time that suits you best. Simply follow the link and one of our agents will contact you to discuss the valuation and marketing of your property.

