Details
Esplanade, Hornsea, HU18
£349,950
Description
Fully Refurbished Four-Bedroom End-Terrace with Sea Views Situated in a popular coastal position in Hornsea, this newly renovated end-terrace property offers spacious and versatile accommodation arranged over three floors, together with attractive sea views to the front. The renovation has included new roof, full new central heating system and boiler (with manufacturers warranty), full re-wire, fully re-plumbed, all new windows and doors and plastering throughout. The property comprises four well-proportioned bedrooms, including a master bedroom with en-suite shower room. A family bathroom is located on the first floor, with an additional bathroom on the second floor, providing practical facilities for family living. There is also a useful ground floor W.C.The ground floor offers bright and functional living space finished in a modern style throughout. The kitchen benefits from French doors opening onto a paved seating area at the rear of the property.Externally, the home features a generous front garden enjoying views towards the sea. To the rear, there is off-street parking, offering added convenience in this well-regarded coastal location.A great opportunity to acquire a well-finished family home close to the seafront and local amenities. Early viewing is recommended.EPC - AwaitedCouncil Tax - AwaitedTenure - Freehold
Front Garden
Mainly laid to lawn with fenced boundaries and sea views.
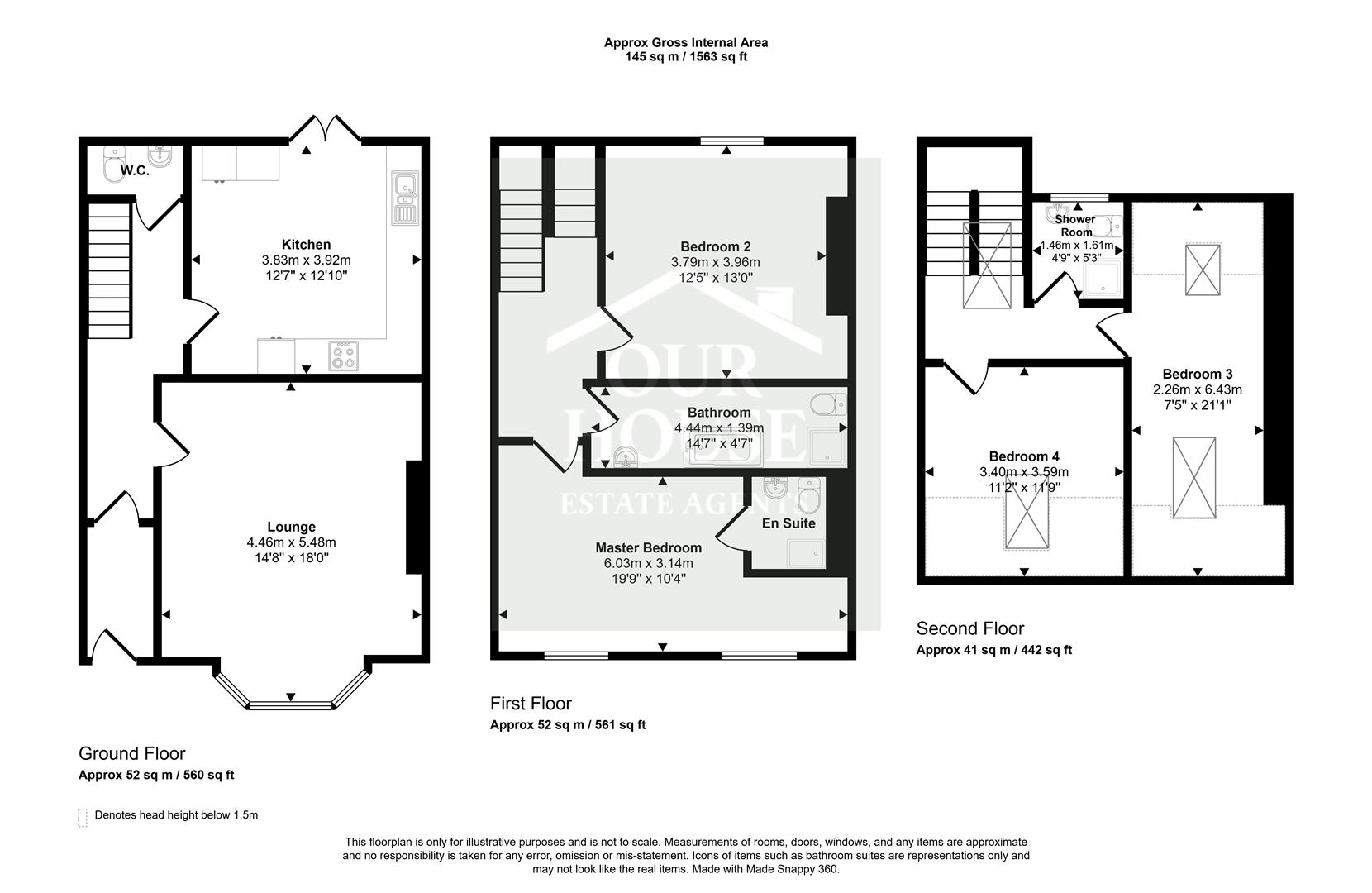
Entrance Hall
Entrance door, radiator, carpeted.
Hallway
Staircase to first floor, spindle banister, radiator, carpeted.
Lounge (4.46 x 5.48 (14'7" x 17'11"))
Bay window to front of property, radiator, carpeted.
Kitchen (3.83 x 3.92 (12'6" x 12'10"))
French doors to rear seating area, fitted wall and base units, Quartz work surfaces, composite one and a half bowl sink and single drainer, integrated double oven, induction hob, extractor fan, integrated dishwasher, washing machine and fridge freezer, radiator, tiled flooring.
Cloakroom (W.C)
W.C, hand wash basin with storage under, part tiled walls, tiled flooring, heated towel rail.
First Floor Landing
Staircase to second floor, spindle banister, radiator, carpeted.
Master Bedroom (6.03 x 3.14 (19'9" x 10'3"))
Two arched windows to front of property with sea views, radiator, carpeted.
En-Suite
W.C, hand wash basin with storage under, step in shower, illuminated vanity mirror, tiled walls, tiled flooring, heated towel rail.
Bedroom 2 (3.79 x 3.96 (12'5" x 12'11"))
Window to rear of property, radiator, carpeted.
Bathroom (4.44 x 1.39 (14'6" x 4'6"))
W.C, hand wash basin with storage under, bath, step in shower, illuminated vanity mirror, tiled walls, tiled flooring, extractor fan, two heated towel rails.
Second Floor Landing
Velux window, spindle banister, radiator, carpeted.
Bedroom 3 (2.26 x 6.43 (7'4" x 21'1"))
Velux windows to front and rear of property, radiator, carpeted.
Bedroom 4 (3.40 x 3.59 (11'1" x 11'9"))
Velux window to front of property, radiator, carpeted.
Shower Room (2nd Floor) (1.46 x 1.61 (4'9" x 5'3"))
Window to side of property, W,C, pedestal hand wash basin, step in shower, part tiled walls, tiled flooring, heated towel rail.
Viewing
Please contact us on 01964 532121 if you wish to arrange a viewing appointment for this property, or require further information.
Disclaimer
Our House Estate Agents - HU18 endeavour to maintain accurate depictions of properties in Virtual Tours, Floor Plans and descriptions, however, these are intended only as a guide and purchasers must satisfy themselves by personal inspection.
Fully Refurbished Four-Bedroom End-Terrace with Sea Views Situated in a popular coastal position in Hornsea, this newly renovated end-terrace property offers spacious and versatile accommodation arranged over three floors, together with attractive sea views to the front. The renovation has included new roof, full new central heating system and boiler (with manufacturers warranty), full re-wire, fully re-plumbed, all new windows and doors and plastering throughout. The property comprises four well-proportioned bedrooms, including a master bedroom with en-suite shower room. A family bathroom is located on the first floor, with an additional bathroom on the second floor, providing practical facilities for family living. There is also a useful ground floor W.C.The ground floor offers bright and functional living space finished in a modern style throughout. The kitchen benefits from French doors opening onto a paved seating area at the rear of the property.Externally, the home features a generous front garden enjoying views towards the sea. To the rear, there is off-street parking, offering added convenience in this well-regarded coastal location.A great opportunity to acquire a well-finished family home close to the seafront and local amenities. Early viewing is recommended.EPC - AwaitedCouncil Tax - AwaitedTenure - Freehold
Front Garden
Mainly laid to lawn with fenced boundaries and sea views.
Entrance Hall
Entrance door, radiator, carpeted.
Hallway
Staircase to first floor, spindle banister, radiator, carpeted.
Lounge (4.46 x 5.48 (14'7" x 17'11"))
Bay window to front of property, radiator, carpeted.
Kitchen (3.83 x 3.92 (12'6" x 12'10"))
French doors to rear seating area, fitted wall and base units, Quartz work surfaces, composite one and a half bowl sink and single drainer, integrated double oven, induction hob, extractor fan, integrated dishwasher, washing machine and fridge freezer, radiator, tiled flooring.
Cloakroom (W.C)
W.C, hand wash basin with storage under, part tiled walls, tiled flooring, heated towel rail.
First Floor Landing
Staircase to second floor, spindle banister, radiator, carpeted.
Master Bedroom (6.03 x 3.14 (19'9" x 10'3"))
Two arched windows to front of property with sea views, radiator, carpeted.
En-Suite
W.C, hand wash basin with storage under, step in shower, illuminated vanity mirror, tiled walls, tiled flooring, heated towel rail.
Bedroom 2 (3.79 x 3.96 (12'5" x 12'11"))
Window to rear of property, radiator, carpeted.
Bathroom (4.44 x 1.39 (14'6" x 4'6"))
W.C, hand wash basin with storage under, bath, step in shower, illuminated vanity mirror, tiled walls, tiled flooring, extractor fan, two heated towel rails.
Second Floor Landing
Velux window, spindle banister, radiator, carpeted.
Bedroom 3 (2.26 x 6.43 (7'4" x 21'1"))
Velux windows to front and rear of property, radiator, carpeted.
Bedroom 4 (3.40 x 3.59 (11'1" x 11'9"))
Velux window to front of property, radiator, carpeted.
Shower Room (2nd Floor) (1.46 x 1.61 (4'9" x 5'3"))
Window to side of property, W,C, pedestal hand wash basin, step in shower, part tiled walls, tiled flooring, heated towel rail.
Viewing
Please contact us on 01964 532121 if you wish to arrange a viewing appointment for this property, or require further information.
Disclaimer
Our House Estate Agents - HU18 endeavour to maintain accurate depictions of properties in Virtual Tours, Floor Plans and descriptions, however, these are intended only as a guide and purchasers must satisfy themselves by personal inspection.
Features
- SEA VIEWS!!
- NEWLY RENOVATED
- FOUR BEDROOMS
- THREE BATHROOMS
- OFF STREET PARKING
- MODERN INTERIOR
Share
Request aValuation
Request a free, no obligation, property valuation.
We know your home is your greatest investment, and if you are thinking of putting your property on the market, we are here to help. We are happy to discuss all aspects of the marketing and value of your property and we aim to book a market appraisal at a time that suits you best. Simply follow the link and one of our agents will contact you to discuss the valuation and marketing of your property.

