Details
Marlborough Avenue, Hornsea, HU18
£159,950
Description
** INVESTMENT OPPORTUNITY! **This beautifully refurbished two-bedroom ground floor flat has been finished to a very high standard, offering stylish and modern living in a convenient location.At the heart of the home is a spacious open-plan living, kitchen, and dining area, featuring a brand new high-spec kitchen with contemporary fittings and sleek finishes – perfect for both entertaining and everyday living. The property also boasts a modern bathroom with quality fixtures and a clean, elegant design.Externally, the apartment benefits from a private gravelled driveway and outdoor space – a rare find for this style of property.Hornsea’s popularity as a holiday destination also makes this property a compelling investment opportunity. The vendor (who operates several successful holiday lets locally) has provided estimated income figures that are available to view through the agents.An ideal choice for first-time buyers, downsizers, or investors looking for a turn-key home with excellent presentation and practical features.EPC: ECouncil Tax: AwaitedTenure: Leasehold
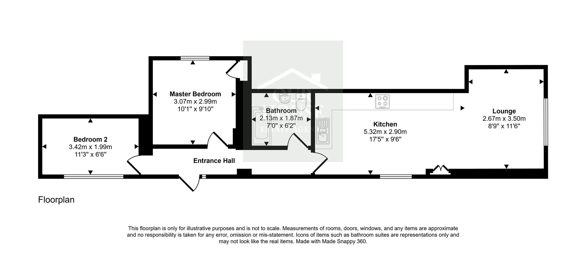
Entrance Hall (5.69 x 0.98 (18'8" x 3'2"))
Entrance door to side leading to hallway, radiator.
Open Plan Kitchen/ Dining/ Lounge (5.50 x 2.97 (18'0" x 9'8"))
Kitchen - Window to front, a range of fitted wall and base units with complimentary work surfaces, single drainer with one a half bowl sink, built in electric hob and oven with extractor fan. Integrated dishwasher, undercounter fridge and freezer, part tiled walls, tiled flooring and electric radiator.
Lounge - 3.62 x 2.80 - Window to front, carpet and electric radiator.
Bedroom 1 (3.19 x 3.13 (10'5" x 10'3"))
Window to side, built in cupboard housing water heater, carpet and electric radiator.
Bedroom 2 (3.52 x 2.09 (11'6" x 6'10"))
Window to side, carpet and electric radiator.
Bathroom (2.19 x 1.98 (7'2" x 6'5"))
Panelled bath with shower over, vanity hand wash basin, W.C, tiled walls and flooring.
Outside Space
Gravelled driveway.
Leasehold Information
The leaseholder will be a company set up by the existing owner of the building (e.g Marlborough Properties Hornsea Ltd). The company will hold two shares, the owner of each apartment will be allocated 1 share, giving each apartment owner equal shares in the company, this will be carried out via each parties solicitors at the point of purchase.
As part of the leasehold arrangement, individual apartment responsibilities for ongoing maintenance will be detailed within, as follows:
The ground floor apartment will be responsible for the upkeep of the parking area.
The ground floor apartment will be responsible for the roof areas each end of the building, specific to that apartment.
Responsibility for the remaining fabric of the building and roof will be shared equally between both apartments.
Each apartment will come with a 999 year lease term.
Viewing
Please contact us on 01964 532121 if you wish to arrange a viewing appointment for this property, or require further information.
Energy Performance Certificate
Click here to view the Energy Efficiency Rating and Environmental Impact Rating for this property.
Disclaimer
Our House Estate Agents - HU18 endeavour to maintain accurate depictions of properties in Virtual Tours, Floor Plans and descriptions, however, these are intended only as a guide and purchasers must satisfy themselves by personal inspection.
** INVESTMENT OPPORTUNITY! **This beautifully refurbished two-bedroom ground floor flat has been finished to a very high standard, offering stylish and modern living in a convenient location.At the heart of the home is a spacious open-plan living, kitchen, and dining area, featuring a brand new high-spec kitchen with contemporary fittings and sleek finishes – perfect for both entertaining and everyday living. The property also boasts a modern bathroom with quality fixtures and a clean, elegant design.Externally, the apartment benefits from a private gravelled driveway and outdoor space – a rare find for this style of property.Hornsea’s popularity as a holiday destination also makes this property a compelling investment opportunity. The vendor (who operates several successful holiday lets locally) has provided estimated income figures that are available to view through the agents.An ideal choice for first-time buyers, downsizers, or investors looking for a turn-key home with excellent presentation and practical features.EPC: ECouncil Tax: AwaitedTenure: Leasehold
Entrance Hall (5.69 x 0.98 (18'8" x 3'2"))
Entrance door to side leading to hallway, radiator.
Open Plan Kitchen/ Dining/ Lounge (5.50 x 2.97 (18'0" x 9'8"))
Kitchen - Window to front, a range of fitted wall and base units with complimentary work surfaces, single drainer with one a half bowl sink, built in electric hob and oven with extractor fan. Integrated dishwasher, undercounter fridge and freezer, part tiled walls, tiled flooring and electric radiator.
Lounge - 3.62 x 2.80 - Window to front, carpet and electric radiator.
Bedroom 1 (3.19 x 3.13 (10'5" x 10'3"))
Window to side, built in cupboard housing water heater, carpet and electric radiator.
Bedroom 2 (3.52 x 2.09 (11'6" x 6'10"))
Window to side, carpet and electric radiator.
Bathroom (2.19 x 1.98 (7'2" x 6'5"))
Panelled bath with shower over, vanity hand wash basin, W.C, tiled walls and flooring.
Outside Space
Gravelled driveway.
Leasehold Information
The leaseholder will be a company set up by the existing owner of the building (e.g Marlborough Properties Hornsea Ltd). The company will hold two shares, the owner of each apartment will be allocated 1 share, giving each apartment owner equal shares in the company, this will be carried out via each parties solicitors at the point of purchase.
As part of the leasehold arrangement, individual apartment responsibilities for ongoing maintenance will be detailed within, as follows:
The ground floor apartment will be responsible for the upkeep of the parking area.
The ground floor apartment will be responsible for the roof areas each end of the building, specific to that apartment.
Responsibility for the remaining fabric of the building and roof will be shared equally between both apartments.
Each apartment will come with a 999 year lease term.
Viewing
Please contact us on 01964 532121 if you wish to arrange a viewing appointment for this property, or require further information.
Energy Performance Certificate
Click here to view the Energy Efficiency Rating and Environmental Impact Rating for this property.
Disclaimer
Our House Estate Agents - HU18 endeavour to maintain accurate depictions of properties in Virtual Tours, Floor Plans and descriptions, however, these are intended only as a guide and purchasers must satisfy themselves by personal inspection.
Features
- NEWLY RENOVATED
- FINISHED TO HIGH STANDARD
- BUNGALOW STYLE LIVING
- PRIVATE OUTSIDE SPACE
- PRIVATE OFF STREET PARKING
- TWO BEDROOMS
- OPEN PLAN
- ON THE TRANS PENINNE TRAIL
Share
Request aValuation
Request a free, no obligation, property valuation.
We know your home is your greatest investment, and if you are thinking of putting your property on the market, we are here to help. We are happy to discuss all aspects of the marketing and value of your property and we aim to book a market appraisal at a time that suits you best. Simply follow the link and one of our agents will contact you to discuss the valuation and marketing of your property.

