Details
Marlborough Avenue, Hornsea, HU18
£154,950
Description
** SINGLE STOREY LIVING WITH PRIVATE OFF-STREET PARKING!! **This beautifully refurbished two-bedroom ground floor apartment has been finished to an exceptional standard, offering stylish and contemporary living in a highly convenient location.At the heart of the home is a spacious open-plan living, kitchen, and dining area, thoughtfully designed to maximise light and functionality. The space features a brand-new high-specification kitchen with sleek, modern finishes—perfect for both entertaining and everyday living. The property also benefits from a beautifully appointed bathroom, complete with quality fixtures and a clean, elegant design.The comprehensive renovation has been carried out in full compliance with stringent building regulations, including enhanced soundproofing for optimal comfort and privacy. As part of the works, the developer has installed brand-new electric radiators, undertaken a full re-wire, added insulation, and fitted a new kitchen and bathroom, as well as being fully plastered and neutrally decorated throughout with modern doors and high quality flooring. The result is a home that offers the feel and reliability of a brand-new property.Externally, the apartment enjoys the rare advantage of a private gravelled driveway along with its own decked garden area, an increasingly sought-after feature for properties of this style. There is also a separate yard for bin storage with a lockable storage unit.With Hornsea continuing to grow in popularity as a holiday destination, this property also presents an excellent investment opportunity. The current vendor, an experienced local holiday-let operator, has provided projected income figures, available upon request through the agents.An ideal purchase for first-time buyers, downsizers, or investors seeking a turnkey home that combines high-quality presentation with practical, low-maintenance living.EPC: Council Tax: AwaitedTenure: Leasehold
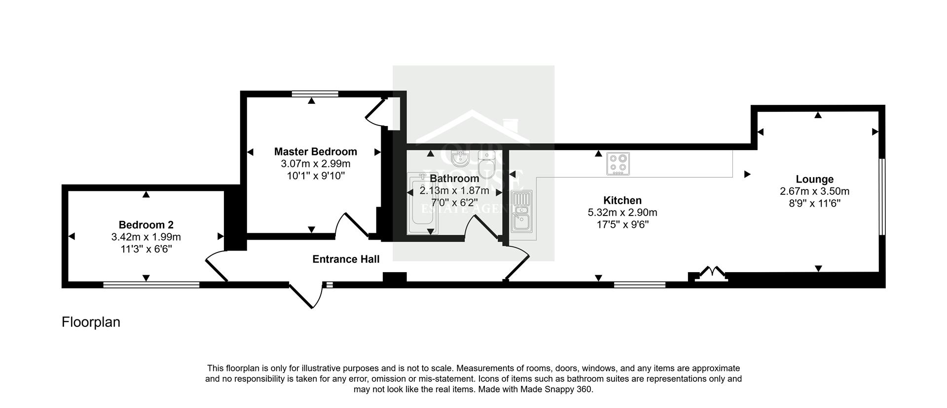
Entrance Hall (5.69 x 0.98 (18'8" x 3'2"))
Entrance door to side leading to hallway, radiator.
Open Plan Kitchen/ Dining/ Lounge (5.50 x 2.97 (18'0" x 9'8"))
Kitchen - Window to front, a range of fitted wall and base units with complimentary work surfaces, single drainer with one a half bowl sink, built in electric hob and oven with extractor fan. Integrated dishwasher, washing machine, undercounter fridge and freezer, part tiled walls, tiled flooring and electric radiator.
Lounge - 3.62 x 2.80 - Window to front, carpet and electric radiator.
Bedroom 1 (3.19 x 3.13 (10'5" x 10'3"))
Window to side, built in cupboard housing water heater, carpet and electric radiator.
Bedroom 2 (3.52 x 2.09 (11'6" x 6'10"))
Window to side, carpet and electric radiator.
Bathroom (2.19 x 1.98 (7'2" x 6'5"))
Panelled bath with shower over, vanity hand wash basin, illuminated mirror with radio, W.C, tiled walls and flooring.
Garden and Driveway (18.90m x 3.05m (62 x 10))
Gravelled driveway measuring 39 feet so enough parking for 2 or 3 vehicles, decked seating area measuring roughly 23 ft x 10ft, fenced boundaries.
Leasehold Information
The leaseholder will be a company set up by the existing owner of the building (e.g Marlborough Properties Hornsea Ltd). The company will hold two shares, the owner of each apartment will be allocated 1 share, giving each apartment owner equal shares in the company, this will be carried out via each parties solicitors at the point of purchase.
This property benefits from a share of the freehold, offering purchasers greater control over the management and maintenance of the building. With little to no ground rent and more transparent service charges, it provides a cost-effective alternative to traditional leasehold ownership. The arrangement also allows for simpler and more affordable lease extensions, enhancing long-term value and appeal. Overall, it combines the structure of a leasehold with the added advantage of increased control and improved resale potential.
Ground rent is £1 per annum. This system affords the 2 apartment owners total control of any ongoing maintenance requirements of the building rather than being at the behest of a 3rd party freeholder.
Each apartment will come with a 999 year lease term.
Viewing
Please contact us on 01964 532121 if you wish to arrange a viewing appointment for this property, or require further information.
Energy Performance Certificate
Click here to view the Energy Efficiency Rating and Environmental Impact Rating for this property.
Disclaimer
Our House Estate Agents - HU18 endeavour to maintain accurate depictions of properties in Virtual Tours, Floor Plans and descriptions, however, these are intended only as a guide and purchasers must satisfy themselves by personal inspection.
** SINGLE STOREY LIVING WITH PRIVATE OFF-STREET PARKING!! **This beautifully refurbished two-bedroom ground floor apartment has been finished to an exceptional standard, offering stylish and contemporary living in a highly convenient location.At the heart of the home is a spacious open-plan living, kitchen, and dining area, thoughtfully designed to maximise light and functionality. The space features a brand-new high-specification kitchen with sleek, modern finishes—perfect for both entertaining and everyday living. The property also benefits from a beautifully appointed bathroom, complete with quality fixtures and a clean, elegant design.The comprehensive renovation has been carried out in full compliance with stringent building regulations, including enhanced soundproofing for optimal comfort and privacy. As part of the works, the developer has installed brand-new electric radiators, undertaken a full re-wire, added insulation, and fitted a new kitchen and bathroom, as well as being fully plastered and neutrally decorated throughout with modern doors and high quality flooring. The result is a home that offers the feel and reliability of a brand-new property.Externally, the apartment enjoys the rare advantage of a private gravelled driveway along with its own decked garden area, an increasingly sought-after feature for properties of this style. There is also a separate yard for bin storage with a lockable storage unit.With Hornsea continuing to grow in popularity as a holiday destination, this property also presents an excellent investment opportunity. The current vendor, an experienced local holiday-let operator, has provided projected income figures, available upon request through the agents.An ideal purchase for first-time buyers, downsizers, or investors seeking a turnkey home that combines high-quality presentation with practical, low-maintenance living.EPC: Council Tax: AwaitedTenure: Leasehold
Entrance Hall (5.69 x 0.98 (18'8" x 3'2"))
Entrance door to side leading to hallway, radiator.
Open Plan Kitchen/ Dining/ Lounge (5.50 x 2.97 (18'0" x 9'8"))
Kitchen - Window to front, a range of fitted wall and base units with complimentary work surfaces, single drainer with one a half bowl sink, built in electric hob and oven with extractor fan. Integrated dishwasher, washing machine, undercounter fridge and freezer, part tiled walls, tiled flooring and electric radiator.
Lounge - 3.62 x 2.80 - Window to front, carpet and electric radiator.
Bedroom 1 (3.19 x 3.13 (10'5" x 10'3"))
Window to side, built in cupboard housing water heater, carpet and electric radiator.
Bedroom 2 (3.52 x 2.09 (11'6" x 6'10"))
Window to side, carpet and electric radiator.
Bathroom (2.19 x 1.98 (7'2" x 6'5"))
Panelled bath with shower over, vanity hand wash basin, illuminated mirror with radio, W.C, tiled walls and flooring.
Garden and Driveway (18.90m x 3.05m (62 x 10))
Gravelled driveway measuring 39 feet so enough parking for 2 or 3 vehicles, decked seating area measuring roughly 23 ft x 10ft, fenced boundaries.
Leasehold Information
The leaseholder will be a company set up by the existing owner of the building (e.g Marlborough Properties Hornsea Ltd). The company will hold two shares, the owner of each apartment will be allocated 1 share, giving each apartment owner equal shares in the company, this will be carried out via each parties solicitors at the point of purchase.
This property benefits from a share of the freehold, offering purchasers greater control over the management and maintenance of the building. With little to no ground rent and more transparent service charges, it provides a cost-effective alternative to traditional leasehold ownership. The arrangement also allows for simpler and more affordable lease extensions, enhancing long-term value and appeal. Overall, it combines the structure of a leasehold with the added advantage of increased control and improved resale potential.
Ground rent is £1 per annum. This system affords the 2 apartment owners total control of any ongoing maintenance requirements of the building rather than being at the behest of a 3rd party freeholder.
Each apartment will come with a 999 year lease term.
Viewing
Please contact us on 01964 532121 if you wish to arrange a viewing appointment for this property, or require further information.
Energy Performance Certificate
Click here to view the Energy Efficiency Rating and Environmental Impact Rating for this property.
Disclaimer
Our House Estate Agents - HU18 endeavour to maintain accurate depictions of properties in Virtual Tours, Floor Plans and descriptions, however, these are intended only as a guide and purchasers must satisfy themselves by personal inspection.
Features
- NEWLY RENOVATED
- FINISHED TO HIGH STANDARD
- BUNGALOW STYLE LIVING
- PRIVATE OUTSIDE SPACE
- PRIVATE OFF STREET PARKING
- TWO BEDROOMS
- OPEN PLAN
- ON THE TRANS PENINNE TRAIL
Share
Request aValuation
Request a free, no obligation, property valuation.
We know your home is your greatest investment, and if you are thinking of putting your property on the market, we are here to help. We are happy to discuss all aspects of the marketing and value of your property and we aim to book a market appraisal at a time that suits you best. Simply follow the link and one of our agents will contact you to discuss the valuation and marketing of your property.

