Details
Main Road, Hornsea, HU18
£499,995
Description
A Unique Coastal Gem – 3-Bedroom Detached Bungalow with Breathtaking Sea Views & Detached 2-Bedroom CabinEnjoy panoramic sea views from this beautifully presented and truly unique 3-bedroom detached bungalow, set in an enviable elevated position. Offering generous and versatile living space throughout, the highlight of this home is undoubtedly the stunning sun room, with direct access to a private balcony that perfectly frames the ever-changing seascape beyond.The interior is thoughtfully laid out and finished to a high standard, ideal for both relaxed family living and entertaining. Outside, the property continues to impress with a good-sized garden, offering a fantastic sense of privacy. There is a huge amount of parking at the property for multiple vehicles or even a motorhome or 2!Adding even more appeal is a detached 2-bedroom cabin within the grounds — perfect as an annexe for extended family, guest accommodation, or potential holiday let (subject to consents).This is a rare opportunity to secure a truly special home in a spectacular coastal setting.EPC - CCouncil Tax - DTenure - Freehold
Front Garden
This generous front garden offers an in out, gravelled driveway with parking for twenty and planted boarders surrounding.
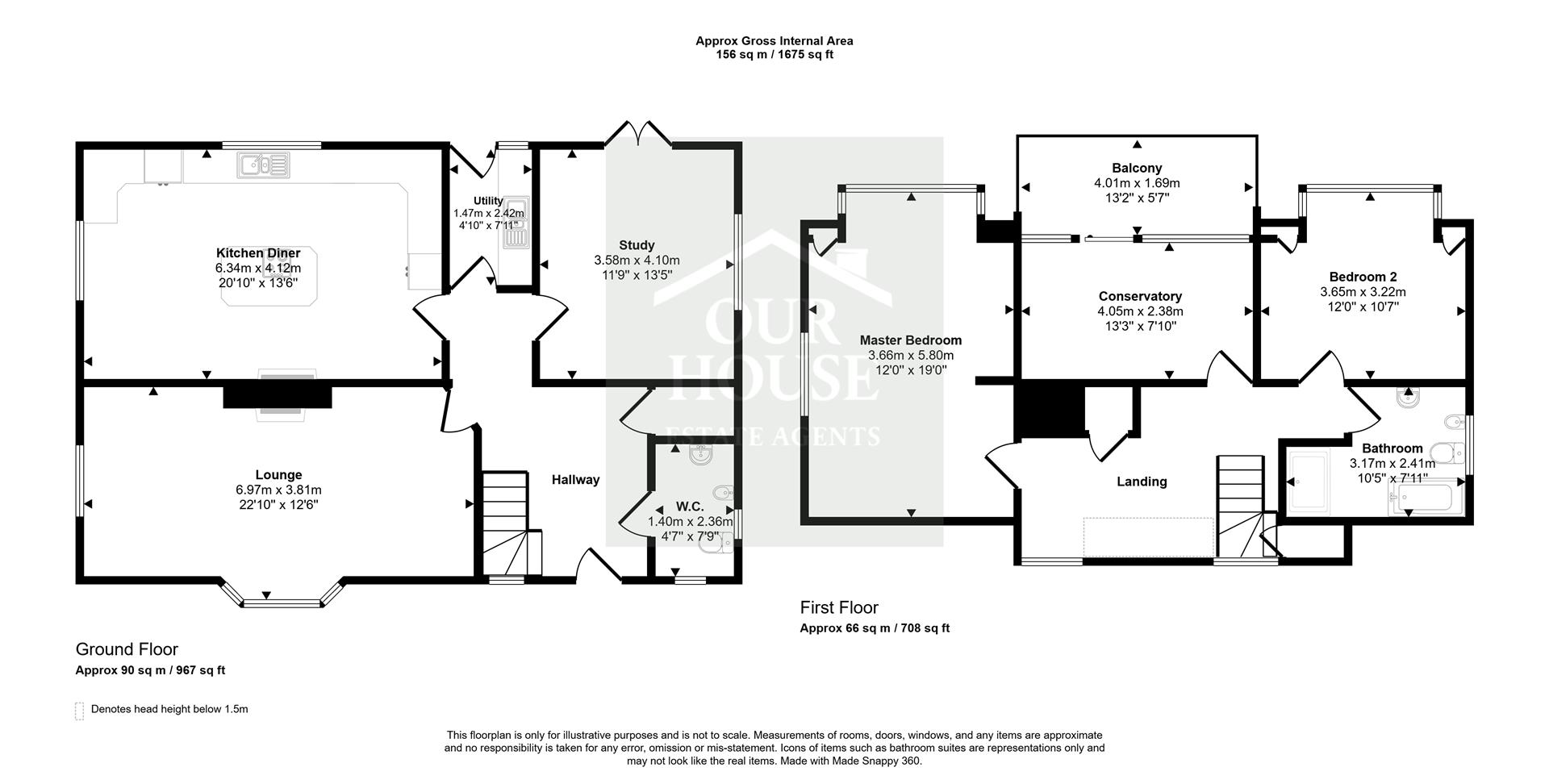
Entrance Hall
Entrance hall comprising a front facing porthole window, a feature wooden staircase to first floor which includes a glass banister, Laminate floor, Radiator and generous storage cupboard.
Cloakroom (W.C) (2.45 x 1.46 (8'0" x 4'9"))
Includes a front and side-facing porthole window, W.C., hand wash basin, and bidet. The room benefits from partly tiled walls, tiled flooring, heated towel rail, and hand drier, with potential space to install a shower if desired.
Lounge (7.08 x 3.48 (23'2" x 11'5"))
This lounge boasts a front-facing bay window and side window, two radiators, and a feature brick fireplace with a two-way multi-fuel burner, slate hearth, and carved wooden mantle. The room is completed with laminate flooring.
Dining room/ Bedroom 3 (4.26 x 3.66 (13'11" x 12'0"))
Inlcudes laminate floor, a window facing the side of the property, Radiator and offers french doors to the rear garden.
Kitchen Diner (6.39 x 4.26 (20'11" x 13'11"))
With side and rear-facing windows and doors leading to the garden, this space offers fitted wall and base units with quartz work surfaces, a Belfast-style double ceramic sink, gas hob, built-in electric double oven, extractor fan, and integrated fridge and dishwasher. Additional features include a breakfast island, radiator, laminate flooring, and a character fireplace housing a two-way multi-fuel burner with log mantle.
Utility (2.55 x 1.5 (8'4" x 4'11"))
Utility equiped with a rear window, Door leading to rear garden, Fitted wall and base units, Work surfaces, Single drainer, stainless bowl sink, Space for dryer and plumbing for wash machine, Partlt tiled walls, Tiled flooring and a heated towel rail.
Sunroom (4.12 x 2.38 (13'6" x 7'9"))
This suntrap includes a rear facing window and glss roof, Patio to balcony, Laminate floor, Radiator and the balcony which also comprises laminate floor and a glass banister.
First Floor Landing (4.68 x 2.18 (15'4" x 7'1" ))
Two front facing windows, a generous sized cupboard, Radiator, Glass banister paired with the wooden stiars, Laminate floor and storage to eves.
Master Bedroom (5.88 x 3.56 (19'3" x 11'8"))
Includes windows facing the side and rear of the property, Built in wardrobes, Radiator, Laminate floor and storage to eves.
Bedroom 2 (3.61 x 3.32 (11'10" x 10'10"))
This bedroom offers storage to eves, a rear facing window and radiator.
Bathroom (3.35 x 2.43 (10'11" x 7'11"))
Includes side winow, W.C, Hand wash basin, Panelled bath, Step in shower, Heated towel rail, Tiled floor, Tiled walls, Extractor fan and shower point
Rear Garden
This garden offers a lawned area, Multiple garden sheds, Hedge boundaries and planted boarders. It also features a gravelled side driveway, Rear patio area, Covered arbour, Polytunnel with trees and shrubs.
Garage (7.22 x 3.86 (23'8" x 12'7"))
Features an up and over electric door, Personel door with window to rear.
Cabin
2 bedrooms with potential for holiday let etc (subject to consents)
Viewing
Please contact us on 01964 532121 if you wish to arrange a viewing appointment for this property, or require further information.
Energy Performance Certificate
Click here to view the Energy Efficiency Rating and Environmental Impact Rating for this property.
Disclaimer
Our House Estate Agents - HU18 endeavour to maintain accurate depictions of properties in Virtual Tours, Floor Plans and descriptions, however, these are intended only as a guide and purchasers must satisfy themselves by personal inspection.
A Unique Coastal Gem – 3-Bedroom Detached Bungalow with Breathtaking Sea Views & Detached 2-Bedroom CabinEnjoy panoramic sea views from this beautifully presented and truly unique 3-bedroom detached bungalow, set in an enviable elevated position. Offering generous and versatile living space throughout, the highlight of this home is undoubtedly the stunning sun room, with direct access to a private balcony that perfectly frames the ever-changing seascape beyond.The interior is thoughtfully laid out and finished to a high standard, ideal for both relaxed family living and entertaining. Outside, the property continues to impress with a good-sized garden, offering a fantastic sense of privacy. There is a huge amount of parking at the property for multiple vehicles or even a motorhome or 2!Adding even more appeal is a detached 2-bedroom cabin within the grounds — perfect as an annexe for extended family, guest accommodation, or potential holiday let (subject to consents).This is a rare opportunity to secure a truly special home in a spectacular coastal setting.EPC - CCouncil Tax - DTenure - Freehold
Front Garden
This generous front garden offers an in out, gravelled driveway with parking for twenty and planted boarders surrounding.
Entrance Hall
Entrance hall comprising a front facing porthole window, a feature wooden staircase to first floor which includes a glass banister, Laminate floor, Radiator and generous storage cupboard.
Cloakroom (W.C) (2.45 x 1.46 (8'0" x 4'9"))
Includes a front and side-facing porthole window, W.C., hand wash basin, and bidet. The room benefits from partly tiled walls, tiled flooring, heated towel rail, and hand drier, with potential space to install a shower if desired.
Lounge (7.08 x 3.48 (23'2" x 11'5"))
This lounge boasts a front-facing bay window and side window, two radiators, and a feature brick fireplace with a two-way multi-fuel burner, slate hearth, and carved wooden mantle. The room is completed with laminate flooring.
Dining room/ Bedroom 3 (4.26 x 3.66 (13'11" x 12'0"))
Inlcudes laminate floor, a window facing the side of the property, Radiator and offers french doors to the rear garden.
Kitchen Diner (6.39 x 4.26 (20'11" x 13'11"))
With side and rear-facing windows and doors leading to the garden, this space offers fitted wall and base units with quartz work surfaces, a Belfast-style double ceramic sink, gas hob, built-in electric double oven, extractor fan, and integrated fridge and dishwasher. Additional features include a breakfast island, radiator, laminate flooring, and a character fireplace housing a two-way multi-fuel burner with log mantle.
Utility (2.55 x 1.5 (8'4" x 4'11"))
Utility equiped with a rear window, Door leading to rear garden, Fitted wall and base units, Work surfaces, Single drainer, stainless bowl sink, Space for dryer and plumbing for wash machine, Partlt tiled walls, Tiled flooring and a heated towel rail.
Sunroom (4.12 x 2.38 (13'6" x 7'9"))
This suntrap includes a rear facing window and glss roof, Patio to balcony, Laminate floor, Radiator and the balcony which also comprises laminate floor and a glass banister.
First Floor Landing (4.68 x 2.18 (15'4" x 7'1" ))
Two front facing windows, a generous sized cupboard, Radiator, Glass banister paired with the wooden stiars, Laminate floor and storage to eves.
Master Bedroom (5.88 x 3.56 (19'3" x 11'8"))
Includes windows facing the side and rear of the property, Built in wardrobes, Radiator, Laminate floor and storage to eves.
Bedroom 2 (3.61 x 3.32 (11'10" x 10'10"))
This bedroom offers storage to eves, a rear facing window and radiator.
Bathroom (3.35 x 2.43 (10'11" x 7'11"))
Includes side winow, W.C, Hand wash basin, Panelled bath, Step in shower, Heated towel rail, Tiled floor, Tiled walls, Extractor fan and shower point
Rear Garden
This garden offers a lawned area, Multiple garden sheds, Hedge boundaries and planted boarders. It also features a gravelled side driveway, Rear patio area, Covered arbour, Polytunnel with trees and shrubs.
Garage (7.22 x 3.86 (23'8" x 12'7"))
Features an up and over electric door, Personel door with window to rear.
Cabin
2 bedrooms with potential for holiday let etc (subject to consents)
Viewing
Please contact us on 01964 532121 if you wish to arrange a viewing appointment for this property, or require further information.
Energy Performance Certificate
Click here to view the Energy Efficiency Rating and Environmental Impact Rating for this property.
Disclaimer
Our House Estate Agents - HU18 endeavour to maintain accurate depictions of properties in Virtual Tours, Floor Plans and descriptions, however, these are intended only as a guide and purchasers must satisfy themselves by personal inspection.
Features
- AMAZING PANORAMIC SEA VIEWS
- UNIQUE DETACHED PROPERTY
- DETACHED 2 BEDROOM CABIN IN GROUNDS (ENDLESS POTENTIAL)
- HUGE AMOUNT OF PARKING (AMPLE SPACE FOR MOTORHOME AND OTHER VEHICLES)
- STUNNING FIRST FLOOR SUNROOM WITH BALCONY
Share
Request aValuation
Request a free, no obligation, property valuation.
We know your home is your greatest investment, and if you are thinking of putting your property on the market, we are here to help. We are happy to discuss all aspects of the marketing and value of your property and we aim to book a market appraisal at a time that suits you best. Simply follow the link and one of our agents will contact you to discuss the valuation and marketing of your property.

