Details
St. Nicholas Drive, Hornsea, HU18
£310,000
(Sold Subject To Contract)
Description
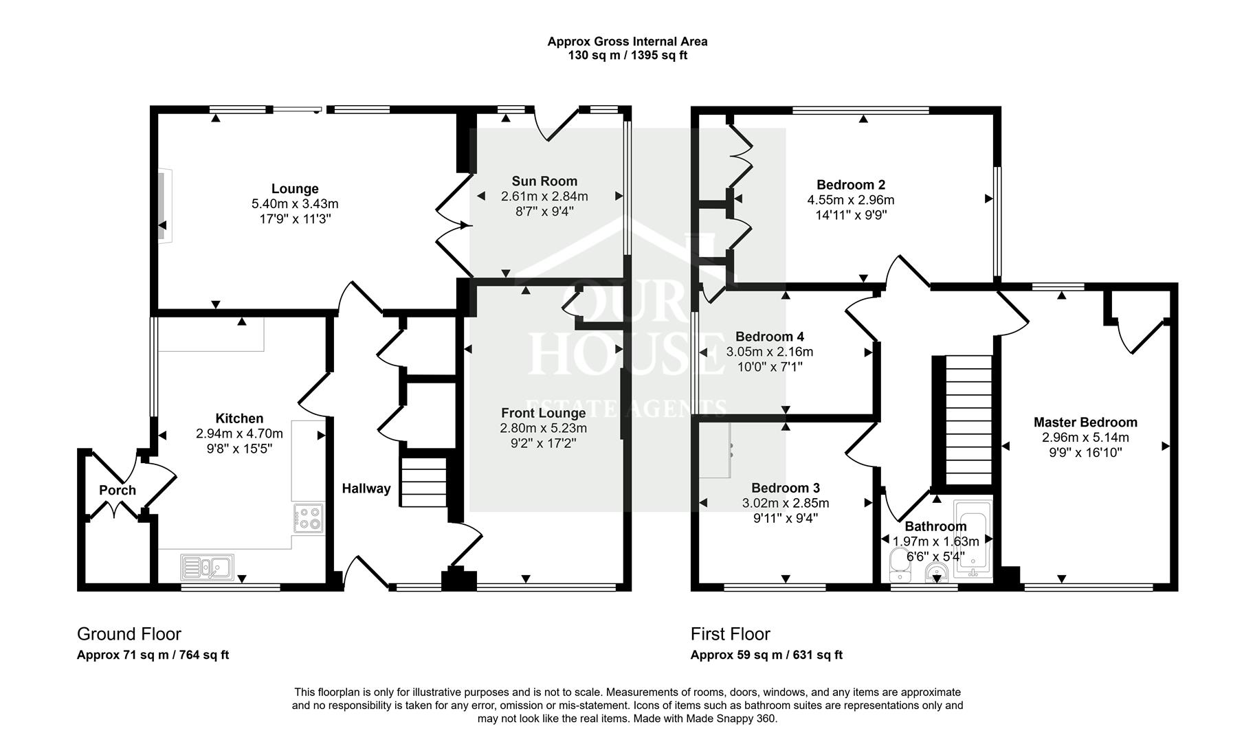
Set on the ever-popular St Nicholas Drive, this four bedroom detached home is offered for sale with no onward chain and offers plenty of potential for its next owners to make it their own.The ground floor comprises a lounge positioned to the front of the property, along with a kitchen and a generous rear living room featuring sliding patio doors opening onto the rear garden, ideal for family living and entertaining. From the rear living room there is also access into a sun room, providing a bright additional space with further access outside.To the first floor, the property offers a master bedroom, three further bedrooms, and a family bathroom, all well suited to family life or those simply looking for a little more space.Externally, the property benefits from gardens to both the front and rear, off-street parking, and a garage. Now vacant, the property would benefit from some updating, presenting a great opportunity to create a lovely home in a popular location.EPC - DCouncil Tax - DTenure - Freehold
Front Garden
Mainly laid to lawn with driveway.
Entrance Hall
Entrance door, staircase to first floor, carpeted
Cloakroom (W.C)
W.C, hand wash basin, tiled splashback, extractor fan, carpeted.
Lounge (5.21 x 3.49 (17'1" x 11'5"))
Window to rear of property, door to garden, fireplace with electric fire, coving to ceiling, door to sun room, carpeted.
Front Lounge (5.24 x 2.88 (17'2" x 9'5"))
Window to front of property, wood panelled wall, feature chimney breast, laminate flooring.
Kitchen (4.74 x 3.01 (15'6" x 9'10"))
Window to front of property, fitted wall and base units, work surfaces, one and a half bowl sink with single drainer, part tiled walls, extractor fan, space for freestanding oven, space and plumbing for washing machine and dishwasher, LVT flooring.
Sunroom (2.79 x 2.59 (9'1" x 8'5"))
Windows to rear and side of property, door to garden.
Rear Hall
Back door, built in cupboards.
Master Bedroom (3.1 x 5.24 (10'2" x 17'2"))
Windows to front and rear of property (dual aspect), built in cupboard, carpeted.
Bedroom 2 (4.53 x 2.99 (14'10" x 9'9"))
Windows to side and rear of property, built in wardrobes, carpeted.
Bedroom 3 (3.09 x 2.95 (10'1" x 9'8"))
Window to front of property, carpeted.
Bedroom 4 (3.11 x 2.21 (10'2" x 7'3"))
Window to side of property, built in cupboard, carpeted.
Bathroom (1.98 x 1.67 (6'5" x 5'5"))
Window to front of property, W.C, pedestal hand wash basin, panelled bath with shower over, tiled walls, LVT flooring.
Rear Garden
Laid mainly to lawn, paved patio area, fenced and hedged boundaries, mature trees and shrubs.
Garage
Detached, up and over door, light and power points, personel door to garden and window.
Viewing
Please contact us on 01964 532121 if you wish to arrange a viewing appointment for this property, or require further information.
Energy Performance Certificate
Click here to view the Energy Efficiency Rating and Environmental Impact Rating for this property.
Disclaimer
Our House Estate Agents - HU18 endeavour to maintain accurate depictions of properties in Virtual Tours, Floor Plans and descriptions, however, these are intended only as a guide and purchasers must satisfy themselves by personal inspection.
Set on the ever-popular St Nicholas Drive, this four bedroom detached home is offered for sale with no onward chain and offers plenty of potential for its next owners to make it their own.The ground floor comprises a lounge positioned to the front of the property, along with a kitchen and a generous rear living room featuring sliding patio doors opening onto the rear garden, ideal for family living and entertaining. From the rear living room there is also access into a sun room, providing a bright additional space with further access outside.To the first floor, the property offers a master bedroom, three further bedrooms, and a family bathroom, all well suited to family life or those simply looking for a little more space.Externally, the property benefits from gardens to both the front and rear, off-street parking, and a garage. Now vacant, the property would benefit from some updating, presenting a great opportunity to create a lovely home in a popular location.EPC - DCouncil Tax - DTenure - Freehold
Front Garden
Mainly laid to lawn with driveway.
Entrance Hall
Entrance door, staircase to first floor, carpeted
Cloakroom (W.C)
W.C, hand wash basin, tiled splashback, extractor fan, carpeted.
Lounge (5.21 x 3.49 (17'1" x 11'5"))
Window to rear of property, door to garden, fireplace with electric fire, coving to ceiling, door to sun room, carpeted.
Front Lounge (5.24 x 2.88 (17'2" x 9'5"))
Window to front of property, wood panelled wall, feature chimney breast, laminate flooring.
Kitchen (4.74 x 3.01 (15'6" x 9'10"))
Window to front of property, fitted wall and base units, work surfaces, one and a half bowl sink with single drainer, part tiled walls, extractor fan, space for freestanding oven, space and plumbing for washing machine and dishwasher, LVT flooring.
Sunroom (2.79 x 2.59 (9'1" x 8'5"))
Windows to rear and side of property, door to garden.
Rear Hall
Back door, built in cupboards.
Master Bedroom (3.1 x 5.24 (10'2" x 17'2"))
Windows to front and rear of property (dual aspect), built in cupboard, carpeted.
Bedroom 2 (4.53 x 2.99 (14'10" x 9'9"))
Windows to side and rear of property, built in wardrobes, carpeted.
Bedroom 3 (3.09 x 2.95 (10'1" x 9'8"))
Window to front of property, carpeted.
Bedroom 4 (3.11 x 2.21 (10'2" x 7'3"))
Window to side of property, built in cupboard, carpeted.
Bathroom (1.98 x 1.67 (6'5" x 5'5"))
Window to front of property, W.C, pedestal hand wash basin, panelled bath with shower over, tiled walls, LVT flooring.
Rear Garden
Laid mainly to lawn, paved patio area, fenced and hedged boundaries, mature trees and shrubs.
Garage
Detached, up and over door, light and power points, personel door to garden and window.
Viewing
Please contact us on 01964 532121 if you wish to arrange a viewing appointment for this property, or require further information.
Energy Performance Certificate
Click here to view the Energy Efficiency Rating and Environmental Impact Rating for this property.
Disclaimer
Our House Estate Agents - HU18 endeavour to maintain accurate depictions of properties in Virtual Tours, Floor Plans and descriptions, however, these are intended only as a guide and purchasers must satisfy themselves by personal inspection.
Share
Request aValuation
Request a free, no obligation, property valuation.
We know your home is your greatest investment, and if you are thinking of putting your property on the market, we are here to help. We are happy to discuss all aspects of the marketing and value of your property and we aim to book a market appraisal at a time that suits you best. Simply follow the link and one of our agents will contact you to discuss the valuation and marketing of your property.

