Details
Tranmere Park, Hornsea, HU18
£330,000
(Sold Subject To Contract)
Description
This beautifully presented four-bedroom detached home combines versatile living with modern style, perfect for family life. The ground floor offers a welcoming lounge, a stylish kitchen diner opening into a light-filled sunroom, and a convenient downstairs W.C. A separate office with its own shower room provides excellent flexibility — ideal for working from home, guests, or even a fifth bedroom.Upstairs, there are two generous double bedrooms, including a principal with en-suite, along with two further bedrooms and a contemporary family bathroom.Outside, the property truly shines with its immaculate, well-kept garden — a private haven for entertaining, relaxing, or enjoying family time. To the front, driveway parking completes this impressive home.Call Our House to arrange a viewing now!!EPC: CCouncil Tax: DTenure: Freehold
Front Garden
Paved driveway with gravelled area. Side access to rear, mature shrubs and trees with planted borders.
Outside cupboard with boiler and electric fuse board (consumer unit).
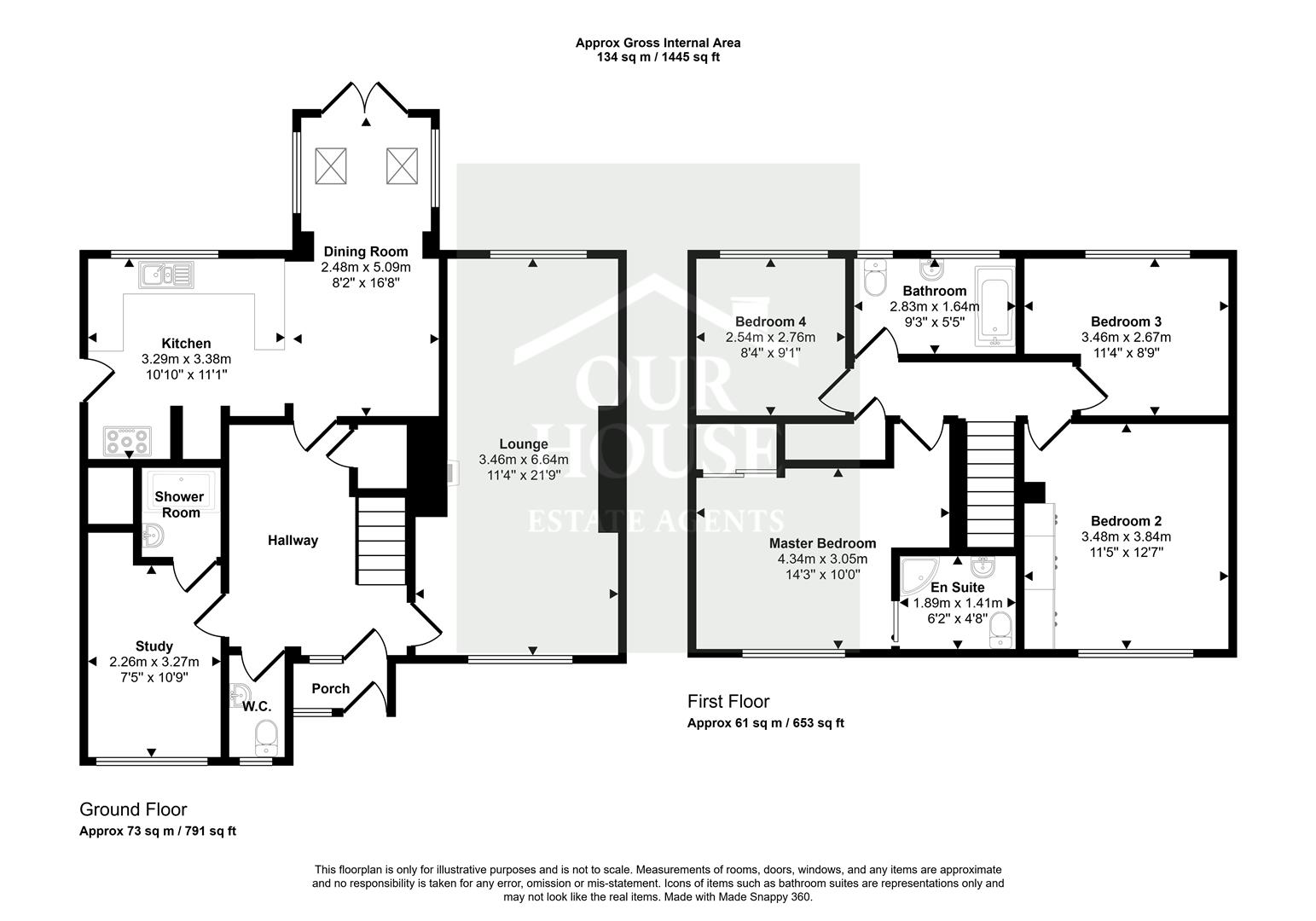
Entrance Porch (1.73 x 0.97m (5'8" x 3'2"))
Entrance Hall (3 x 3.81m (9'10" x 12'5"))
Entrance door, staircase to first floor with understairs cupboard, Amtico flooring, coving to ceiling and radiator.
Cloakroom (WC) (1.12 x 1.75 m (3'8" x 5'8" m))
Window to rear, pedestal hand wash basin, W.C, Amtico flooring and radiator.
GF Office/ Bed 5 (3.84 x 2.3 (12'7" x 7'6"))
Window to front, carpet and radiator.
GF Shower Room (1.47 x 1.37 (4'9" x 4'5"))
Step in electric shower, basin, heated towel rail and extractor fan.
Lounge (6.66 x 3.48 (21'10" x 11'5"))
Window to front and rear, limestone fireplace, carpet and two radiators.
Kitchen Diner (5.99m x 3.38m (19'7" x 11'1"))
Window to rear, and door to side and rear. A range of fitted wall and base units with complimentary granite work surfaces and downlighting, stainless steel single drainer and bowl sink. Space for electric range style oven and fridge freezer, fitted slimline dishwasher and built in washing machine. Extractor fan, Amtico flooring and radiator. - Open plan to Sunroom.
Sunroom (2.44m x 2.24m (8'0" x 7'4"))
Windows to side and French doors to rear, two skylights, two radiators, Amtico flooring. - Open plan to kitchen.
First Floor Landing
Airing cupboard, loft access with pull down ladder.
Master Bedroom (4.4 x 3.1 (14'5" x 10'2"))
Window to front, built in wardrobes, coving to ceiling, carpet and radiator.
En-Suite (1.89 x1.41 (6'2" x4'7"))
Pedestal wash hand basin, W.C, step in shower, heated towel rail, part tiled walls, Amtico flooring and extractor fan.
Bedroom 2 (3.85 x 3.5 (12'7" x 11'5"))
Window to front, built in wardrobes, carpet and radiator.
Bedroom 3 (3.5 x 2.72 (11'5" x 8'11"))
Window to rear, carpet and radiator.
Bedroom 4 (2.75 x 2.55 (9'0" x 8'4"))
Window to rear, laminate flooring and radiator.
Bathroom (2.87 x 1.68 (9'4" x 5'6"))
Windows to rear, pedestal hand wash basin, W.C, panelled bath with shower over, part tiled walls, Amtico flooring and extractor fan.
Rear Garden
Laid mainly to lawn with fenced boundaries and planted borders. Raised decked area with lighting, flagstone patio area, gravelled area. Two garden sheds, one with power and light. External lighting and cold water tap and external power serving decking lighting and water feature.
Viewing
Please contact us on 01964 532121 if you wish to arrange a viewing appointment for this property, or require further information.
Energy Performance Certificate
Click here to view the Energy Efficiency Rating and Environmental Impact Rating for this property.
Disclaimer
Our House Estate Agents - HU18 endeavour to maintain accurate depictions of properties in Virtual Tours, Floor Plans and descriptions, however, these are intended only as a guide and purchasers must satisfy themselves by personal inspection.
This beautifully presented four-bedroom detached home combines versatile living with modern style, perfect for family life. The ground floor offers a welcoming lounge, a stylish kitchen diner opening into a light-filled sunroom, and a convenient downstairs W.C. A separate office with its own shower room provides excellent flexibility — ideal for working from home, guests, or even a fifth bedroom.Upstairs, there are two generous double bedrooms, including a principal with en-suite, along with two further bedrooms and a contemporary family bathroom.Outside, the property truly shines with its immaculate, well-kept garden — a private haven for entertaining, relaxing, or enjoying family time. To the front, driveway parking completes this impressive home.Call Our House to arrange a viewing now!!EPC: CCouncil Tax: DTenure: Freehold
Front Garden
Paved driveway with gravelled area. Side access to rear, mature shrubs and trees with planted borders.
Outside cupboard with boiler and electric fuse board (consumer unit).
Entrance Porch (1.73 x 0.97m (5'8" x 3'2"))
Entrance Hall (3 x 3.81m (9'10" x 12'5"))
Entrance door, staircase to first floor with understairs cupboard, Amtico flooring, coving to ceiling and radiator.
Cloakroom (WC) (1.12 x 1.75 m (3'8" x 5'8" m))
Window to rear, pedestal hand wash basin, W.C, Amtico flooring and radiator.
GF Office/ Bed 5 (3.84 x 2.3 (12'7" x 7'6"))
Window to front, carpet and radiator.
GF Shower Room (1.47 x 1.37 (4'9" x 4'5"))
Step in electric shower, basin, heated towel rail and extractor fan.
Lounge (6.66 x 3.48 (21'10" x 11'5"))
Window to front and rear, limestone fireplace, carpet and two radiators.
Kitchen Diner (5.99m x 3.38m (19'7" x 11'1"))
Window to rear, and door to side and rear. A range of fitted wall and base units with complimentary granite work surfaces and downlighting, stainless steel single drainer and bowl sink. Space for electric range style oven and fridge freezer, fitted slimline dishwasher and built in washing machine. Extractor fan, Amtico flooring and radiator. - Open plan to Sunroom.
Sunroom (2.44m x 2.24m (8'0" x 7'4"))
Windows to side and French doors to rear, two skylights, two radiators, Amtico flooring. - Open plan to kitchen.
First Floor Landing
Airing cupboard, loft access with pull down ladder.
Master Bedroom (4.4 x 3.1 (14'5" x 10'2"))
Window to front, built in wardrobes, coving to ceiling, carpet and radiator.
En-Suite (1.89 x1.41 (6'2" x4'7"))
Pedestal wash hand basin, W.C, step in shower, heated towel rail, part tiled walls, Amtico flooring and extractor fan.
Bedroom 2 (3.85 x 3.5 (12'7" x 11'5"))
Window to front, built in wardrobes, carpet and radiator.
Bedroom 3 (3.5 x 2.72 (11'5" x 8'11"))
Window to rear, carpet and radiator.
Bedroom 4 (2.75 x 2.55 (9'0" x 8'4"))
Window to rear, laminate flooring and radiator.
Bathroom (2.87 x 1.68 (9'4" x 5'6"))
Windows to rear, pedestal hand wash basin, W.C, panelled bath with shower over, part tiled walls, Amtico flooring and extractor fan.
Rear Garden
Laid mainly to lawn with fenced boundaries and planted borders. Raised decked area with lighting, flagstone patio area, gravelled area. Two garden sheds, one with power and light. External lighting and cold water tap and external power serving decking lighting and water feature.
Viewing
Please contact us on 01964 532121 if you wish to arrange a viewing appointment for this property, or require further information.
Energy Performance Certificate
Click here to view the Energy Efficiency Rating and Environmental Impact Rating for this property.
Disclaimer
Our House Estate Agents - HU18 endeavour to maintain accurate depictions of properties in Virtual Tours, Floor Plans and descriptions, however, these are intended only as a guide and purchasers must satisfy themselves by personal inspection.
Share
Request aValuation
Request a free, no obligation, property valuation.
We know your home is your greatest investment, and if you are thinking of putting your property on the market, we are here to help. We are happy to discuss all aspects of the marketing and value of your property and we aim to book a market appraisal at a time that suits you best. Simply follow the link and one of our agents will contact you to discuss the valuation and marketing of your property.

