Details
Back Lane, Hull, HU11
£199,950
Description
Nestled in the heart of the pretty village of Seaton, this charming two-bedroom end-terrace cottage offers a wonderful opportunity to create a truly special home.This exciting cottage has so much potential, allowing the next owner to put their own stamp on it and bring out its full character.Inside, there are two inviting reception rooms, offering flexible living and dining spaces, along with the convenience of a ground floor shower room. Upstairs, you’ll find two comfortable bedrooms, a family bathroom, and a generous landing area, previously used as a home office, perfect for modern living.Outside is where this home really shines. The beautiful, good-sized south-facing cottage garden provides a peaceful and sunny retreat, ideal for relaxing or entertaining. There is also a gated side driveway leading to a detached garage, offering valuable off-road parking and storage.With its appealing setting, lovely garden, and exciting potential, this cottage is a fantastic opportunity for buyers looking to create a home with personality in a desirable village location.Tenure: FreeholdEPC: Awaited Council Tax: B
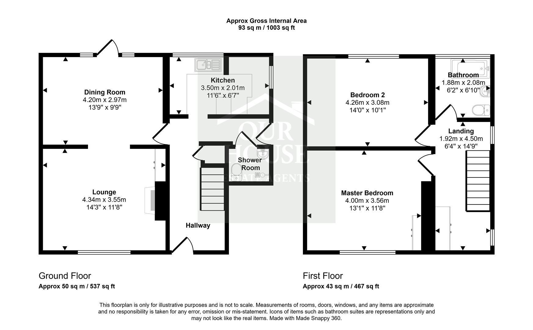
Entrance Hall
Wooden entrance door, staircase to first floor with understairs cupboard, tiled floor and radiator.
GF Wetroom (1.41 x 1.13 (4'7" x 3'8"))
Hand wash basin, W.C, shower with shower boarding to walls, heated towel rails.
Front Lounge (4.4 x 3.63 (14'5" x 11'10"))
Window to front, fireplace housing multi-fuel burner with tiled hearth and brick inset. Built in storage to sides. Vinyl flooring and radiator.
Dining Room (4.31 x 3.06 (14'1" x 10'0"))
Window to rear, doors to garden. Open plan to living room, vinyl flooring.
Kitchen (3.71 x 2.08 (12'2" x 6'9"))
Windows to side and rear, a range of fitted wall and base units with work surfaces, composite single drainer and bowl sink. Space and plumbing for washing machine. Space for freestanding oven, fridge and tumble drier.
First Floor Landing
Two windows to the side and wooden floor. Cupboard housing hot water tank. Radiator and spindle banister. Useful area, used by the previous owner as an office space.
Master Bedroom (4.44 x 3.64 (14'6" x 11'11"))
Window to the front with views over open paddocks. Built in wardrobes, wooden floor, radiator and loft access.
Bedroom 2 (4.29 x 3.12 (14'0" x 10'2"))
Window to the rear. Wooden floor and radiator.
Bathroom (2.06 x 1.96 (6'9" x 6'5"))
Window to the rear. W.C., hand wash basin and panelled bath. Heated towel rail, part tiled walls, tiled floor, heated towel rail and radiator,
Garden
Laid partly to lawn with paved areas, this is a pretty cottage garden that benefits from being south facing. There are planted borders and rockeries, along with an outside tap.
Garage
Detached garage accessed via long gated side drive.
Viewing
Please contact us on 01964 532121 if you wish to arrange a viewing appointment for this property, or require further information.
Disclaimer
Our House Estate Agents - HU18 endeavour to maintain accurate depictions of properties in Virtual Tours, Floor Plans and descriptions, however, these are intended only as a guide and purchasers must satisfy themselves by personal inspection.
Nestled in the heart of the pretty village of Seaton, this charming two-bedroom end-terrace cottage offers a wonderful opportunity to create a truly special home.This exciting cottage has so much potential, allowing the next owner to put their own stamp on it and bring out its full character.Inside, there are two inviting reception rooms, offering flexible living and dining spaces, along with the convenience of a ground floor shower room. Upstairs, you’ll find two comfortable bedrooms, a family bathroom, and a generous landing area, previously used as a home office, perfect for modern living.Outside is where this home really shines. The beautiful, good-sized south-facing cottage garden provides a peaceful and sunny retreat, ideal for relaxing or entertaining. There is also a gated side driveway leading to a detached garage, offering valuable off-road parking and storage.With its appealing setting, lovely garden, and exciting potential, this cottage is a fantastic opportunity for buyers looking to create a home with personality in a desirable village location.Tenure: FreeholdEPC: Awaited Council Tax: B
Entrance Hall
Wooden entrance door, staircase to first floor with understairs cupboard, tiled floor and radiator.
GF Wetroom (1.41 x 1.13 (4'7" x 3'8"))
Hand wash basin, W.C, shower with shower boarding to walls, heated towel rails.
Front Lounge (4.4 x 3.63 (14'5" x 11'10"))
Window to front, fireplace housing multi-fuel burner with tiled hearth and brick inset. Built in storage to sides. Vinyl flooring and radiator.
Dining Room (4.31 x 3.06 (14'1" x 10'0"))
Window to rear, doors to garden. Open plan to living room, vinyl flooring.
Kitchen (3.71 x 2.08 (12'2" x 6'9"))
Windows to side and rear, a range of fitted wall and base units with work surfaces, composite single drainer and bowl sink. Space and plumbing for washing machine. Space for freestanding oven, fridge and tumble drier.
First Floor Landing
Two windows to the side and wooden floor. Cupboard housing hot water tank. Radiator and spindle banister. Useful area, used by the previous owner as an office space.
Master Bedroom (4.44 x 3.64 (14'6" x 11'11"))
Window to the front with views over open paddocks. Built in wardrobes, wooden floor, radiator and loft access.
Bedroom 2 (4.29 x 3.12 (14'0" x 10'2"))
Window to the rear. Wooden floor and radiator.
Bathroom (2.06 x 1.96 (6'9" x 6'5"))
Window to the rear. W.C., hand wash basin and panelled bath. Heated towel rail, part tiled walls, tiled floor, heated towel rail and radiator,
Garden
Laid partly to lawn with paved areas, this is a pretty cottage garden that benefits from being south facing. There are planted borders and rockeries, along with an outside tap.
Garage
Detached garage accessed via long gated side drive.
Viewing
Please contact us on 01964 532121 if you wish to arrange a viewing appointment for this property, or require further information.
Disclaimer
Our House Estate Agents - HU18 endeavour to maintain accurate depictions of properties in Virtual Tours, Floor Plans and descriptions, however, these are intended only as a guide and purchasers must satisfy themselves by personal inspection.
Features
- Two Bedroom End Terrace Cottage
- Two Bathrooms
- South Facing Cottage Gardens
- Driveway and Garage
- Village Location
- Paddock Views
Share
Request aValuation
Request a free, no obligation, property valuation.
We know your home is your greatest investment, and if you are thinking of putting your property on the market, we are here to help. We are happy to discuss all aspects of the marketing and value of your property and we aim to book a market appraisal at a time that suits you best. Simply follow the link and one of our agents will contact you to discuss the valuation and marketing of your property.

