Details
Cawood Drive, Hull, HU11
£235,000
Description
This well-positioned three-bedroom semi-detached dormer bungalow enjoys open countryside views to the rear and offers a generous amount of off-street parking, including a shared driveway leading to a garage and a spacious gravelled frontage. The property also benefits from no chain. The ground floor features an open-plan kitchen diner and lounge, creating a sociable and versatile living space. Upstairs, the property offers three bedrooms — two comfortable doubles and a single — along with a family bathroom.Externally, the rear garden is enclosed and low-maintenance, with the standout feature being the uninterrupted rural outlook beyond.A great opportunity to make a home your own in a popular residential area with countryside on the doorstep.EPC: CCouncil Tax: CTenure: Freehold
Entrance Hall
Includes entrance door, a staircase to the first floor, tiled floors and radiator.
Cloakroom
Window to side, W.C, hand wash basin, tiled floors and radiator.
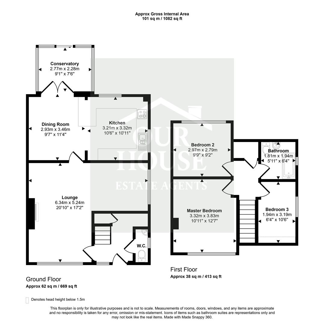
Through Lounge Diner (6.47 x 5.29 (21'2" x 17'4"))
Carpeted through lounge diner with front and side window, a wood surround fireplace, coving to ceiling and two radiators.
Kitchen Diner (6.42 x 3.4 (21'0" x 11'1"))
This kitchen/diner features side and rear-facing windows along with French doors leading into the conservatory. It offers a range of fitted wall and base units with work surfaces and a one-and-a-half bowl stainless steel sink with single drainer. Integrated appliances include a built-in electric hob, electric oven, extractor fan, and a fitted dishwasher. Additional features include partly tiled walls, coving to the ceiling, a radiator, a practical vinyl floor, and a breakfast bar—ideal for casual dining.
Conservatory (2.88 x 2.33 (9'5" x 7'7"))
This conservatory features laminate flooring throughout.
First Floor Landing
Includes loft access.
Master Bedroom (3.87 x3.36 (12'8" x11'0"))
Master bedroom including front facing window, wood flooring and radiator.
Bedroom 2 (3.03 x 2.86 (9'11" x 9'4"))
Carpeted bedroom featuring a rear window and radiator.
Bedroom 3 (3.25 x 2.02 (10'7" x 6'7"))
Carpeted bedroom with a window facing the side of the property and a radiator.
Bathroom (2.03 x 1.86 (6'7" x 6'1"))
Side window, W.C, pedestal hand wash basin, panelled bath with shower over, heated towel rail, partly tiled walls and vinyl floor.
Rear Garden
This south facing garden with open fields is laid mainly to lawn with a paved patio area, fenced boundaries, planted boarders and is split into two areas
Garage
Detached garage featuring an up and over door, Light and power points.
Viewing
Please contact us on 01964 532121 if you wish to arrange a viewing appointment for this property, or require further information.
Energy Performance Certificate
Click here to view the Energy Efficiency Rating and Environmental Impact Rating for this property.
Disclaimer
Our House Estate Agents - HU18 endeavour to maintain accurate depictions of properties in Virtual Tours, Floor Plans and descriptions, however, these are intended only as a guide and purchasers must satisfy themselves by personal inspection.
This well-positioned three-bedroom semi-detached dormer bungalow enjoys open countryside views to the rear and offers a generous amount of off-street parking, including a shared driveway leading to a garage and a spacious gravelled frontage. The property also benefits from no chain. The ground floor features an open-plan kitchen diner and lounge, creating a sociable and versatile living space. Upstairs, the property offers three bedrooms — two comfortable doubles and a single — along with a family bathroom.Externally, the rear garden is enclosed and low-maintenance, with the standout feature being the uninterrupted rural outlook beyond.A great opportunity to make a home your own in a popular residential area with countryside on the doorstep.EPC: CCouncil Tax: CTenure: Freehold
Entrance Hall
Includes entrance door, a staircase to the first floor, tiled floors and radiator.
Cloakroom
Window to side, W.C, hand wash basin, tiled floors and radiator.
Through Lounge Diner (6.47 x 5.29 (21'2" x 17'4"))
Carpeted through lounge diner with front and side window, a wood surround fireplace, coving to ceiling and two radiators.
Kitchen Diner (6.42 x 3.4 (21'0" x 11'1"))
This kitchen/diner features side and rear-facing windows along with French doors leading into the conservatory. It offers a range of fitted wall and base units with work surfaces and a one-and-a-half bowl stainless steel sink with single drainer. Integrated appliances include a built-in electric hob, electric oven, extractor fan, and a fitted dishwasher. Additional features include partly tiled walls, coving to the ceiling, a radiator, a practical vinyl floor, and a breakfast bar—ideal for casual dining.
Conservatory (2.88 x 2.33 (9'5" x 7'7"))
This conservatory features laminate flooring throughout.
First Floor Landing
Includes loft access.
Master Bedroom (3.87 x3.36 (12'8" x11'0"))
Master bedroom including front facing window, wood flooring and radiator.
Bedroom 2 (3.03 x 2.86 (9'11" x 9'4"))
Carpeted bedroom featuring a rear window and radiator.
Bedroom 3 (3.25 x 2.02 (10'7" x 6'7"))
Carpeted bedroom with a window facing the side of the property and a radiator.
Bathroom (2.03 x 1.86 (6'7" x 6'1"))
Side window, W.C, pedestal hand wash basin, panelled bath with shower over, heated towel rail, partly tiled walls and vinyl floor.
Rear Garden
This south facing garden with open fields is laid mainly to lawn with a paved patio area, fenced boundaries, planted boarders and is split into two areas
Garage
Detached garage featuring an up and over door, Light and power points.
Viewing
Please contact us on 01964 532121 if you wish to arrange a viewing appointment for this property, or require further information.
Energy Performance Certificate
Click here to view the Energy Efficiency Rating and Environmental Impact Rating for this property.
Disclaimer
Our House Estate Agents - HU18 endeavour to maintain accurate depictions of properties in Virtual Tours, Floor Plans and descriptions, however, these are intended only as a guide and purchasers must satisfy themselves by personal inspection.
Features
- Chain Free
- Three Bedrooms
- Ample Parking
- Garage
- Open Views to Rear
- Popular Location
Share
Request aValuation
Request a free, no obligation, property valuation.
We know your home is your greatest investment, and if you are thinking of putting your property on the market, we are here to help. We are happy to discuss all aspects of the marketing and value of your property and we aim to book a market appraisal at a time that suits you best. Simply follow the link and one of our agents will contact you to discuss the valuation and marketing of your property.

